-
-
-
Tổng tiền thanh toán:
-
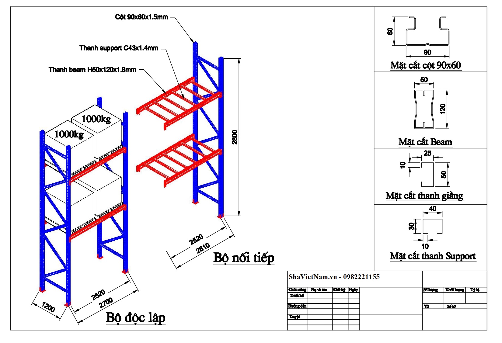
Kệ Pallet 2 Tầng Beam là một loại kệ pallet phổ biến nhất, với 3 tầng để hàng, chiều cao thích hợp cho việc nâng hạ, lưu trữ, kiểm kệ và chịu tải cao, tối ưu diện tích. Giá kệ pallet 3 tầng để hàng thì tầng 1 thuờng để xuống nền kho, tầng 2 và tầng 3 pallet được đặt trên thanh beam.
Kệ pallet 2 tầng | Kệ công nghiệp 2 tầng còn có nhiều các gọi khác nhau: Kệ để pallet 2 tầng, Kệ chứa pallet 2 tầng, Kệ xếp pallet 2 tầng, Kệ công nghiệp 2 tầng... dù gọi cách nào đi chăng nữa thì Kệ pallet 2 tầng cũng có cấu tạo và tính năng, công năng giống nhau.

- Khung hồi (cột): Cột được gấp dạng Omega (90x60), tùy theo chiều cao và tải trọng mà cột có thể dày 1.6mm, 1.8mm, 2.0mm hay 2.2mm.
- Thanh Beam (tay đỡ): Đây là phần chịu tải trực tiếp với chiều sầu của thanh beam là 5cm, còn chiều cao thì tùy theo tải trọng mà là: 50x80, 50x90, 50x100, 50x120, 50x140, 50x150....
- Thanh Suport: Giúp cố định thanh Beam và hỗ trợ chịu tải thường là C43 hoặc C50.
- Thanh giằng: Thường là C25x50 + ốc bulong để bắt thanh giằng vào cột tạo khung hồi.
- Phụ kiện khác: Tùy theo Layout và yêu cầu của khách hàng mà Giá kệ Pallet sắt để hàng còn có cả: Thanh giằng dãy (giúp giằng 2 dãy kệ ốp lưng vào nhau), Ốp cột - bảo vệ cột khỏi đâm va, Badie - Bảo vệ dãy kệ - chống đâm và vào dãy.

Khách hàng có nhu cầu đặt sản xuất kệ trung tải, kệ kho hàng, kệ hạng nặng, .. cho doanh nghiệp mình chỉ cần liên hệ với ShaVietNam.vn để chúng tôi có thể:
Khảo sát mặt bằng - đề xuất phương án + Báo giá - ký kết hợp đồng + Sản xuất + Vận chuyển lắp đặt + Bảo dưỡng, bảo hành.
Tất cả các bước diễn ra từ 8 ngày đến 12 ngày, tuy theo số lượng và yêu cầu của khách hàng.

- Tôn Ct3 theo tiêu chuẩn Nhật Bản, đầy đủ COCQ và hóa đơn chứng từ, giúp những khách hàng ở các khu công nghiệp, khu chế xuất, doanh nghiệp có vốn nhà nước vô cùng yên tâm.
- Sơn tĩnh điện theo tiêu chuẩn Châu Âu, vô cùng bền đẹp, sáng bóng.
Xem video để trực quan hơn nhé.
- Tư vấn nhiệt tình, khảo sát, tư vấn, thiết kế miễn phí;
- Giá rẻ - luôn cam kết giá rẻ trong thị trường;
- Thống số kỹ thuật chuẩn (độ dày, mỏng, kích thước chuẩn);
- Thời gian sản xuất nhanh chóng, chỉ giao động từ 3 đến 8 ngày;
- Lắp đặt, thi công nhanh chóng, đúng kỹ thuật;
- Chệ độ bảo hành lên đến 60 tháng, cực kỳ uy tín.
Khách hàng có nhu cầu mua Kệ để pallet - Kệ xếp pallet - Kệ chứa pallet vui lòng liên hệ với Công ty Cổ Phần Sản xuất và Phân phối SHA Việt Nam, để được tư vấn miễn phí, mua với giá rẻ và lắp, giao hàng nhanh chóng, chính xác.
Trân trọng.
=====================================================================================================
Xem thêm: Báo giá kệ trung tải | Dự Án đã thi công
Trang chủ | Kệ công nghiệp | Kệ tải trọng trung bình | Kệ v lỗ | Sắt v lỗ | Kệ giá siêu thị | Kệ chứa pallet | Kệ hạng nặng | Kệ chứa hàng

I. KHUYẾN MẠI
Với mục đích tri ân khách hàng, và hỗ trợ phát triển kinh doanh Công ty Cổ Phần SHA Việt Nam Khuyến Mại đặt biệt như sau:
1. Đồng hành cùng chương trình "Quốc Gia Khởi Nghiệp" - Giảm ngay 5% trên tổng hóa đơn thanh toán với điều kiện:
- Có đăng ký kinh doanh lần đầu cùng năm với thời điểm ký hợp đồng mua bán với ShaVietNam, gồm tất cả các hình thức kinh doanh: Doanh nghiệp với đủ hình thức theo quy định, hộ kinh doanh cá thể, hợp tác xã, doanh nghiệp đầu tư nước ngoài...
- Giá trị hưởng: Các đơn hàng có tổng giá trị từ 5 triệu đồng trở lên.
2. Khách hàng thân thiết:
Giảm ngay 3% cho khách hàng thân thiết với điều kiện:
- Đơn hàng đầu có trị giá trên 3 triệu đồng;
- Đơn hàng tiếp theo có địa chỉ lắp đặt mới (không trùng địa chỉ cũ) và có trị giá từ 2 triệu trở lên.
II. VẬN CHUYỂN - LẮP ĐẶT
Kệ là loại hàng hóa cồng kềnh, nên việc vận chuyển rất khó khăn, có bản chủ yếu vận chuyển bằng xe ô tô, xe lam, xe máy chuyên dụng và khách hàng ít khi có thể tự vận chuyển được nếu không đi ô tô.
Giá chúng tôi báo cho quý khách trên Web, trên bảng giá, hay cụ thể từng đơn hàng về cơ bản là chưa có vận chuyển. Tuy nhiên trên quan điểm nếu chúng tôi vận chuyển được thì chỉ lấy chút "xăng xe" không phải lấy "Phí" như đơn vị vận chuyển hoặc nếu phải thuê xe ngoài thì chúng tôi cũng thuê đơn vị quen với giá rẻ để đảm bảo quyền lợi của khách hàng.
Chính sách vận chuyển của chúng tôi như sau:
1. Đối với khách hàng đại lý ở các tỉnh:
- Nếu khách hàng lấy từ 30 triệu đồng/1 đơn hàng trở lên: Chúng tôi sẽ vận chuyển miễn phí từ trong bán kính 150km, và nếu vượt trên số km này thì sẽ tính phần phụ trội ngoài 150km.
- Nếu khách hàng lấy đơn hàng từ dưới 30 triệu đồng tiền hàng/1 đơn hàng:
+ Nếu khách hàng muốn chúng tôi vận chuyển đến nơi - Hai bên cùng thương lượng cước phí vận chuyển trên cơ sở đảm bảo tối ưu nhất cho khách hàng.
+ Nếu khách hàng chọn xe hàng, xe khách tỉnh để tự vận chuyển về. Chúng tôi sẽ vận chuyển ra bên xe mà khách hàng yêu cầu, đồng thời trao đổi về cước, nhưng vẫn đảm bảo tối ưu nhất cho khách hàng.
2. Với khách hàng là người tiêu dùng (doanh nghiệp và cá nhân)
- Miễn phí vận chuyển đơn hàng từ 2.000.000 đồng trở lên trong nội thành Hà Nội (chỉ gồm các quận).
- Các đơn hàng còn lại, cùng trao đổi về phí vận chuyển trên cơ sở tối ưu nhất cho khách hàng, rẻ nhất cho khách hàng.
III. BẢO HÀNH
Là nhà sản xuất, phân phối và thương mại, chúng tôi luôn coi dịch vụ khách hàng, chăm sóc khách hàng là yếu tố quan trọng hàng đầu của mình để khách hàng được phục vụ tốt nhất, từ đó giúp chúng tôi lan tỏ đến người tiêu dùng khác và giới thiệu cho SHAVietNam.vn.
1. Thời gian bảo hành:
a. Với khách là các doanh nghiệp sử dụng kệ trung tải, kệ kho hàng nặng, kệ xếp Pallet:
- Đơn hàng có giá trị từ 200 đồng trở lên: Bảo hành 10 năm, hàng năm cử cán bộ kỹ thuật xuống nơi lắp đặt, xem xét, đánh giá trọng tải, sơn lại những vết xước, kiểm tra lại ốc, vít và khắc phục tại chỗ những điểm khắc phục ngay được.
- Đơn hàng từ trên 100 triệu đồng đến dưới 200 triệu đồng bảo hành lên đến 10 năm - chỉ xử lý sự cố khi có yêu cầu.
- Đơn hàng dưới 100 triệu đồng bảo hành lên đến 5 năm.
b. Khách hàng mua kệ siêu thị, kệ sắt v lỗ đa năng:
Bảo hành từ 12 tháng đến 36 tháng, tuy theo giá trị đơn hàng và thỏa thuận với khách hàng.
2. Điều kiện bảo hành:
a. Lỗi do nhà sản xuất, do lỗi kỹ thuật.
b. Sử dụng đúng yêu cầu, trọng tải.
c. Trường hợp có những sự cố lớn phải giữa nguyên hiện trường, và trưng cầu giám định khi cần thiết.
Trân trọng cảm ơn quý khách hàng.
Khách hàng có nhu cầu mua kệ chứa hàng vui lòng liên hệ với Công ty Cổ Phần Sản xuất và Phân phối SHA Việt Nam, để được tư vấn miễn phí, mua với giá rẻ và lắp, giao hàng nhanh chóng, chính xác.
Trân trọng.
=====================================================================================================
Xem thêm: Các mẫu kệ trung tải | Bảng Giá Kệ sắt V lỗ | Dự Án đã thi công
Trang chủ | Kệ công nghiệp | Giá kệ trung tải | Kệ sắt v lỗ | Sắt v lỗ | Kệ giá siêu thị | Kệ pallet | Kệ hạng nặng

Giao hàng miễn phí
Với đơn hàng trên 2.000.000đBảo hành dài hạn
Bảo hành lên đến 10 nămHình thức thanh toán
Thanh toán khi nhận hàngĐặt mua hàng online
Gọi ngay 0982241155
Dịch